Gemini Club
The Cloud, Internet
01.1101° N, -10.0110° W

AI Vision: 004
Programs: Claude Code, Gemini, NanoBanana Pro 2, Rhino, Grasshopper
Typology: Culture
Origin and Evolution
This research explores a custom workflow that pairs Claude's coding capabilities with Gemini's ability to reference vast architectural intent and logic through Google's knowledge network, pushing AI to generate floor plans based on adjacencies and natural language prompts. The project emerged from a fundamental challenge in computational design: bridging the gap between an architect's programmatic intent and realizable building geometry. Early iterations revealed that neither pure algorithmic approaches nor unconstrained AI outputs produced architecturally coherent results—algorithms lacked design intuition while AI-generated coordinates ignored physical constraints and spatial relationships. This led to the development of a hybrid system where Claude iteratively built a custom placement algorithm creating an architectural logic core, while Gemini interprets building programs using real-world design knowledge to decide entry orientation, zone organization, room attributes, and critical relationships. The algorithm evaluates positions through a weighted ranking system comprising six modular scoring functions—relationship satisfaction, access hierarchy, zone clustering, noise and wet room logic, building compactness, and edge alignment—that together evaluate tens of thousands of candidate positions per generation to find optimal room placements. Through extensive iteration, the system evolved to incorporate AI-defined area ranges allowing intelligent room scaling, anchor room prioritization based on building type, and relationship-driven placement that understands support spaces should adjoin what they serve rather than clustering by abstract category—laying groundwork for the system to eventually imagine technical details like structural grids, mechanical routing, and code-compliant egress paths. 
Gemini Club: A Case Study
The workflow’s potential becomes especially clear in the generation of a clubhouse floor plan, where a natural-language prompt describing amenities, capacity, and functional requirements is translated into a spatially organized diagram through approximately 50,000 scoring calculations evaluating more than 10,000 candidate placements. Gemini interprets the architectural program with a degree of relational logic, recognizing, for example, that the lobby should act as the organizational anchor from which members move to fitness, lounge, and dining spaces; that locker rooms and showers should directly support the fitness area rather than drift toward back-of-house functions; and that the kitchen must balance service access with proximity to dining. The algorithm then tests each possible room position against weighted design criteria, asking questions such as whether the locker room touches the gym, whether the lobby sits near the primary entry edge, and whether quieter spaces are buffered from louder activity zones.
The resulting bubble diagram — a field of color-coded rectangles whose shared edges encode adjacency relationships — becomes the input for Stage 2, where NanoBanana, Gemini’s image-generation model, interprets that abstract geometry and develops it into a presentation-ready floor plan complete with walls, doors, furniture, and architectural character. The significance of the workflow lies not only in automation, but in its ability to move from language to logic to image while preserving the organizational intent of the design. What begins as a single sentence describing a clubhouse program can therefore progress into a rendered plan with only limited human intervention, primarily in reviewing zone assignments, adjusting coverage targets, or regenerating outputs for variation.
01_The Spatializing Brain
At the core of Stage 1 sits what can be described as a "spatializing brain". This is essentially Gemini processing the natural language prompt and translating programmatic requirements into architectural logic. When given a clubhouse prompt, the AI doesn't simply list rooms; it reasons about the building as a whole. As shown in the output panel, Gemini identifies the building type, selects an entry edge (south-facing, to create "a welcoming gesture"), and determines that a U-shaped plan "allows for a central courtyard accessible from multiple zones." It then organizes 24 rooms into 7 distinct zones—entry_zone at the front, public_zone in the right wing, dining_zone at center, kitchen_zone and service_zone at the back, fitness_zone in the left wing, and private_zone in the right wing—each with a spatial position that reflects real architectural thinking about circulation, privacy gradients, and functional adjacencies.
The AI also plans intentional open spaces: an arrival plaza for welcoming guests, a service yard for discrete loading access, a gathering space, and a terrace extending the dining and lounge areas outdoors. This isn't random generation, it's Gemini drawing on Google's vast knowledge network to understand that kitchens belong at the back for service access, that fitness and administrative zones should occupy separate wings to minimize noise conflicts, and that the relationship between indoor dining and outdoor terrace creates the social heart of a clubhouse. The reasoning panel captures this logic in plain language, making the AI's spatial decisions transparent and auditable before any geometry is generated.
02_Realizing the Plan
Stage 2 translates the abstract bubble diagram into architectural documentation through NanoBanana, Gemini’s image-generation model. The system is directed to produce CAD-like drawings with consistent line weights, readable wall thicknesses, proper door swings, and high-contrast linework on a clean background. This styling is intentional: the output is optimized for vectorization, allowing extracted geometry to be converted into usable CAD data in Rhino and creating a bridge between AI image generation and conventional design software.
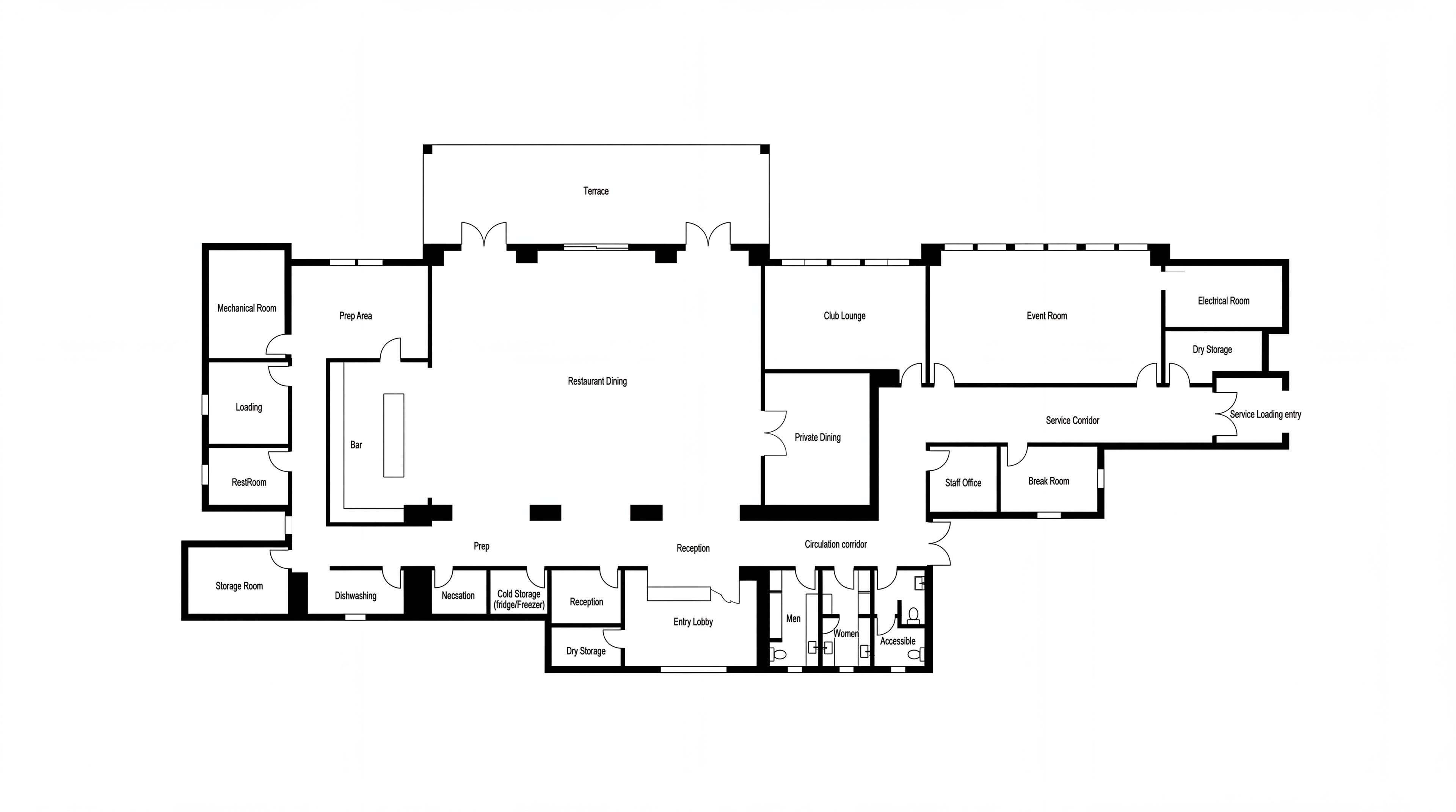
The generated clubhouse plan shows NanoBanana’s ability to interpret spatial relationships and introduce architectural logic beyond the bubble diagram itself. Public spaces are organized clearly, support spaces cluster where they make operational sense, and service functions align with back-of-house access and circulation. What emerges is more than a sketch; it is schematic documentation with room labels, doors, fixtures, and implied wall assemblies, suggesting a workflow that moves from text prompt to AI-generated plan to BIM-ready development with minimal human intervention.
03_From Pixels to Geometry
A later stage in the workflow bridges AI-generated imagery with parametric modeling through a vectorizing algorithm that traces the high-contrast linework produced by NanoBanana. Because the floor plan is intentionally generated with clean black lines on a white background, similar to CAD conventions, the algorithm can reliably detect wall edges, door openings, and room boundaries, converting raster pixels into vector polylines that remain closely aligned with the spatial logic established in the original bubble diagram. Once extracted, this geometry lives natively in Rhino as curves and closed polylines, ready for extrusion into 3D walls, boolean operations for openings, or export into BIM platforms for further development. What begins as a text prompt describing a clubhouse program can therefore become manipulable architectural geometry, linking natural language intent, AI interpretation, and actionable design production.
04_Conceptual Visualization
The same AI that interpreted the program and generated the floor plan can also visualize the result. Once the geometry is extruded into 3D massing, a viewport capture paired with a prompt describing materials, atmosphere, and architectural style produces photorealistic renderings in seconds rather than the hours required for traditional visualization pipelines—as demonstrated by the transformation of simple extruded walls into a lush clubhouse rendering complete with green roof, landscaping, and human activity. This closes a creative loop where Gemini's visual intelligence bookends the entire workflow
First spatializing the program into zones and relationships, then imagining how those spaces might feel to occupy. An architect can move from text prompt to spatial diagram to floor plan to 3D rendering within a single session, testing ideas at a pace that matches the speed of design thinking rather than the bottleneck of production.
05_Pushing the Boundaries
The same viewport-to-image workflow hints at capabilities beyond visualization. In an experimental test, NanoBanana was prompted to read the extruded geometry not simply as something to render, but as a surface for technical interpretation, producing primitive plan details directly overlaid onto the floor plan. These included wall corner assemblies with insulation hatching, structural layers, and interior finish build-ups, as well as door-like conditions showing how openings transition through wall thickness. What made the result compelling was that the overlay generally respected the proportions and dimensions of the underlying geometry: wall thicknesses aligned, corners registered correctly, and the detail information appeared in the proper spatial context. While these outputs are still far from construction-document quality and would require major improvements in coordination, code compliance, and constructability, they suggest that the model is beginning to understand basic architectural assembly logic. For less experienced designers or students, this points to a future in which AI can act as a contextual technical reference during design development, offering early guidance on how a corner, wall, or opening might be resolved within the same workflow that generated the broader spatial layout.
06_Implications and Future Application
The ability to move from natural language prompt to spatially-organized floor plan, vectorized geometry, photorealistic rendering, and technical detail overlay—all within a single session—fundamentally compresses the early design cycle. This entire clubhouse case study, from initial prompt to rendered visualization and detail explorations, took approximately 30 minutes to develop. Within that timeframe, the algorithm had already performed over 50,000 scoring calculations across 10,000+ candidate positions before the designer even saw the first option, a level of spatial optimization that would be impossible to replicate manually. What traditionally required weeks of schematic iteration, consultant coordination, and visualization production can now be explored in hours, allowing design teams to test multiple programmatic approaches before committing resources. Perhaps most significantly, this workflow opens the door to conceptual pricing at the earliest stages of design. With room areas calculated from the bubble diagram, wall lengths extracted from vectorized linework, and building massing derived from extruded geometry, estimators could apply cost-per-square-foot benchmarks or assembly-based pricing while the design is still fluid enough to change. A developer could compare the cost implications of a U-shaped clubhouse versus a linear one before a single construction document is produced. By front-loading spatial intelligence and technical reference into the conceptual phase, this AI-augmented workflow has the potential to catch misalignments between program, budget, and site constraints early—when changes cost nothing but a revised prompt.
Back to Top